Wireless Strategy: Signal Data Surveys in Florida, USA
When our team develops wireless networks for intricate industrial settings or expansive facilities, ensuring and sustaining optimal performance is crucial. We understand the challenges posed by rising device connectivity, heightened production requirements, and the essential need for real-time data, all of which rely on a highly robust infrastructure. We've also discovered that without careful preparation, projects can be easily disrupted by unexpected coverage gaps, disruptive interference, or equipment integration challenges.
This is why conducting a professional pre-deployment site survey is fundamental to our project methodology; it serves as the essential first step for any major industrial network upgrade, turning uncertainty into informed, data-driven decisions. At a facility in Florida, USA, our team was responsible for creating a seamless WLAN experience across their large office and warehouse. We utilized advanced tools, particularly Ekahau, to perform a thorough wireless site survey. This detailed process enabled us to strategically determine the best Access Point locations and ensure complete, dependable coverage throughout the site. This groundwork was the blueprint that ensured their network investment led to significant enhancements in reliability, safety, and overall operational efficiency.
Understanding the Wireless Pre-Deployment Survey Process
A wireless site survey serves as a critical first step in the deployment of any WLAN. Conducted in September 2024 this survey laid the foundation for designing a wireless infrastructure that meets the operational needs of the facility. Covering both office and warehouse areas, the survey’s objective was to assess current wireless conditions and recommend optimal Access Point (AP) placements for full wireless coverage.
Key Areas Covered
2nd Floor Office (1,500 sq. ft.): 2 Access Points
1st Floor Office (1,400 sq. ft.): 2 Access Points
Warehouse (13,000 sq. ft.): 11 Access Points

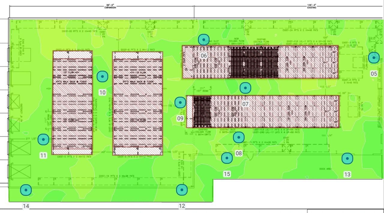
Site Plan
Deep Dive: Critical Findings from the Site Survey
A. Coverage Gaps and Structural Obstacles
Key Finding: The legacy design left significant dead spots in high-rack warehouse aisles and at the dock edges. The survey revealed several coverage gaps and signal weaknesses, especially around metal racking and loading docks areas where handheld devices are mission-critical.
Implication: These dead zones were directly impacting the reliability of warehouse scanners and mobile workflows, leading to occasional data sync failures, scanning delays, and worker inefficiency particularly in high-density product storage zones.
Survey-Driven Solution: The new design increases AP count (with a mix of Cisco models), using directional antennas strategically mounted on trusses and I-beams, specifically aligned to pierce through racking “shadow zones.” AP placement also considers the impact of moving forklifts and inventory, which can attenuate or reflect RF signals.
B. Interference and Channel Planning
Key Finding: High co-channel interference was observed in the 2.4GHz band within dense warehouse aisles and at transition zones between office and warehouse. The survey found that signal overlap was not optimal, creating inconsistent roaming behavior for mobile devices.
Implication: Poor channel planning and excessive overlap could cause device disconnects, unreliable voice communications, and slow transaction times at peak usage potentially delaying time-sensitive logistics or production tasks.
Survey-Driven Solution:
- 5GHz First: AP placement is optimized for 5GHz coverage, reducing interference and supporting higher device density.
- Cell Size Optimization: Transmit power is tuned (6.25–25mW depending on AP location), keeping coverage cells tight and overlap strategic to minimize co-channel interference while ensuring seamless roaming for warehouse and office devices.
- Ignored 2.4GHz Gaps: Following customer's standards, minor 2.4GHz gaps were deprioritized, given the focus on modern 5GHz-capable devices.
C. Infrastructure and Cabling Upgrades
Key Finding: The site’s existing copper cabling was insufficient for the new design, with runs and switch capacity not optimized for high-throughput, PoE+ enabled APs.
Implication: Without a structured cabling upgrade (to Cat6A), the facility risked both immediate performance issues and limited future scalability (e.g., inability to support new AP models or Wi-Fi 6/6E).
Survey-Driven Solution:
- Full Cat6A Migration: All APs to be wired with Cat6A, keeping cable lengths under 295’ per industry standards.
- 10Gbps Uplinks: Switch infrastructure was mapped and recommended for upgrades to ensure every MDF/IDF uplink delivers at least 10Gbps.
- PoE+ Standardization: New Cisco switches to deliver the required PoE budget for all APs, supporting both current and future wireless needs.
D. Client Density and Device Profiling
Key Finding: The survey meticulously mapped both standard and high-density client areas — offices, meeting rooms, lunchrooms, and especially warehouse floors with handheld scanner clusters.
Implication: Without detailed density mapping, the facility risked periodic slowdowns or device contention, especially during shift changes or seasonal inventory spikes.
Survey-Driven Solution:
- AP Quantity and Placement: AP density was increased in high-traffic and high-density areas, ensuring even peak client loads won’t degrade wireless reliability.
- Overlap and Roaming: A target of ~20% AP RSSI overlap ensures seamless handoff for mobile users moving between coverage zones.
E. Practical Design Recommendations from the Survey
- AP Mounting Heights: APs in warehouse areas are mounted as high as 25’ to optimize coverage through racking, while office APs remain at 8’ for optimal horizontal spread.
- Antenna Selection: Directional and omni antennas are selected based on area challenges (e.g., omni for open floor, patch antennas for aisle penetration).
- Redundancy and Futureproofing: Dual-bonded switch uplinks and available rack space are documented for scalability and resilience.
Signal Strengths

5GHz Signal Strength in Warehouse

2.4GHz Signal Strength in Warehouse
Optimizing Coverage for Client Devices
The facility’s network is designed to support a diverse range of client devices, from smartphones and tablets to specialized handheld scanners. The survey prioritized wireless signal strength, with a minimum Received Signal Strength Indicator (RSSI) of -65 dBm and a Signal-to-Noise Ratio (SNR) of over 25 dB.
The final wireless design ensures robust coverage, particularly in high-density areas like the conference room and break room.
Network Infrastructure Design
The site’s network infrastructure was designed with scalability and performance in mind. The survey recommended the use of Cisco switches and Category 6A wiring to support the growing number of APs, allowing for Power over Ethernet (PoE+) and high-speed 10 Gb/s uplinks between the Main Distribution Frame (MDF) and Intermediate Distribution Frame (IDF).
Final Thoughts
The pre-deployment wireless survey provides an excellent blueprint for robust, scalable wireless network infrastructure. By following a recommendations/survey-driven solutions laid out, the facility will enjoy enhanced connectivity, seamless operations, and the flexibility to adapt to future technological needs.
Please get in touch with the experts at Orion US today.

Image Source: Canva
